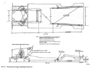
Frame Rails
Falcon
<
Back to Tech Section
>